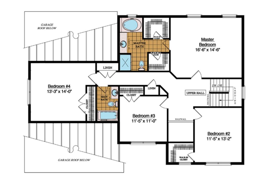
Augusta – Meadows of Clifton Park Meadows of Clifton Park Description Basic facts Neighborhood Features Video Agent 1 2 Property ID: 2197 Bedrooms: 4 Bathrooms: 2.5 Area: 2640 sq ft Type: Colonial Download Floorplan To top spacity2022-03-09T23:09:04-05:00